EZ's 2013 duff challenge part 2 - Printable Version

+- (https://bigbluetrains.com)
+-- Forum: Photographer's right of way (https://bigbluetrains.com/forumdisplay.php?fid=37)
+--- Forum: Contests & Challenges (https://bigbluetrains.com/forumdisplay.php?fid=9)
+--- Thread: EZ's 2013 duff challenge part 2 (/showthread.php?tid=5910)

Pages: 1 2 3


EZ's 2013 duff challenge part 2 - ezdays - 03-09-2013

Well, having finished the first challenge in record time, for me that is, I'm going to stick my neck out and start another challenge. We just spent yesterday morning cleaning up the garage, so I guess it's time to get back out there and mess it back up.

With that in mind, I've been storing my cars and engines in a metal tool chest. I've been meaning to build a wall-mounted cabinet that will hold all of them. Not only for display, but I'm getting tired of searching to find what drawer I put what car in. Some of the stuff I have won't ever run. For instance, I have several sets of 80' passenger cars that wouldn't make it around some of the curves on my layout (impulse buys), but they should at least be displayed. Anyway, I've designed a 36" x 36" wall cabinet with clear doors that I have room to mount on one wall.

Here's what I've been using:
   

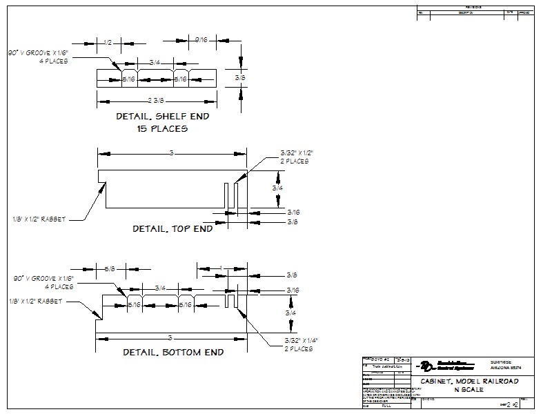
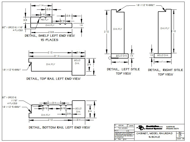
Here is the 2D plans for my cabinet. I'd do a 3D sketch, but I never got past the 2D part of my CAD program. I guess I could always make that my third challenge.... maybe next year. Icon_lol

   

   


Re: EZ's 2013 duff challenge part 2 - ezdays - 03-09-2013

Oh yeah, I've put one restriction on this project, that is, I cannot buy anything and so I can only use what material and hardware that I already have in my shop. :o My intent is to use both solid oak and oak plywood. I think I have enough, but I won't know for sure until I start since I didn't make a materials list. Nope


Re: EZ's 2013 duff challenge part 2 - Tyson Rayles - 03-09-2013

A worthy endevor ! Thumbsup


Re: EZ's 2013 duff challenge part 2 - Sumpter250 - 03-10-2013

"Here is the 2D plans for my cabinet. I'd do a 3D sketch, but I never got past the 2D part of my CAD program. I guess I could always make that my third challenge.... maybe next year."
or m a y b e, - - - - - once the cabinet is built, you won't n e e d a 3D sketch Big Grin Big Grin Big Grin


Re: EZ's 2013 duff challenge part 2 - ezdays - 03-10-2013

Sumpter250 Wrote:"Here is the 2D plans for my cabinet. I'd do a 3D sketch, but I never got past the 2D part of my CAD program. I guess I could always make that my third challenge.... maybe next year."
or m a y b e, - - - - - once the cabinet is built, you won't n e e d a 3D sketch Big Grin Big Grin Big Grin

Good point, build the cabinet, take a picture, place the picture on a drawing sheet and voila, we have a 3D drawing. Thumbsup


Re: EZ's 2013 duff challenge part 2 - ezdays - 03-14-2013

OK, I'm ready to start building. I've had to make a number of changes based on my commitment that I would only use the material I already had on hand. I was going to use sliding plex doors, but with the piece of Plexiglas that I couldn't make the cabinet as tall as I wanted, so I opted to put framed doors on instead. That gained me about 4" in height. I was also limited in the width because of the material I have for the shelves. Finally, I didn't have two pair of matching hinges that I could use, so I will make the doors bi-fold and hing then at one end and the middle, that way I could use different sets of hinges. Wink No matter which way I turned, I seemed to be screwed by my own challenge of not buying any material or hardware to make this with. :o But then again, that's the added fun in this challenge. Thumbsup One other change, I've raised the back half of he shelves and increased the height between them so the cars in the back rows will show better.

Designing it probably took about as long as it will to build, but then again, it was half the fun. Big Grin Big Grin Here's my final design on paper:

   

   

   


Re: EZ's 2013 duff challenge part 2 - modelsof1900 - 03-15-2013

Well designed construction for your show case! And a good plan is the half of way to a good result.
I have built my big show case 20 years ago and I have longer planned and drawn than I have built it. All moves and settlements were gone without damages - for showcase and models.
Wish you good a success!


Re: EZ's 2013 duff challenge part 2 - ezdays - 03-15-2013

Thanks, like I said, the designing is half the fun. It took a bit longer since it's been a while that I've used my CAD program and I found myself in the, "how do I do that again?" quandary. Got to try things four and five times before I find the right way to get what I want to happen, that's why I'm not trying this in 3D. Nope Like Pete says, I'll have my 3D when the project is done... Wink


Re: EZ's 2013 duff challenge part 2 - Sumpter250 - 03-15-2013

Yeah, it's been a while for me too, using my CAD program. I seem to have to use things more frequently than I ever used to, or I forget how.
No! :o It can't be.......... age?? !! :oops: Icon_twisted Icon_lol


Re: EZ's 2013 duff challenge part 2 - ezdays - 03-15-2013

Sumpter250 Wrote:Yeah, it's been a while for me too, using my CAD program. I seem to have to use things more frequently than I ever used to, or I forget how.
No! :o It can't be.......... age?? !! :oops: Icon_twisted Icon_lol

Noooooo, it's not age, it's just that our minds have more important things to think about nowadays. Some of these lesser things, like running CAD are compacted and archived somewhere else in our memories and it just take a bit longer to access the data. Icon_lol Instant access is reserved for high priority things like, where did I put my glasses, where's my car keys or, what did I eat for breakfast today? If you can't answer any of these questions, you'll need to reboot your brain into the "safe" mode and do a scan for lost data (and other things). 357 357

I had this hanging on my office wall for years, first at work and now at home, and it's as true now as it was then:

   


Re: EZ's 2013 duff challenge part 2 - ezdays - 03-18-2013

Progress, yup, it may not look like anything yet, but there is progress. On Saturday, I was able to cut and groove all the shelves and glue up the back riser on the shelves to make them 3/8" thick. Yesterday, I should have been able to finish gluing up the shelves and then some, but instead, I spent the day working on my tools. My router table wouldn't rise high enough, which means that I needed to take it apart and clean out the sawdust that gets into the adjustment gears, so I opted to go with my smaller hand router mounted to a small table. I just got that all set up, and that router decided it didn't want to run anymore. :o It seems like I was having an "ngauger day", Eek one thing going wrong after another... Curse I took the router apart and everything checked out. The switch and the trigger mechanism worked, and the motor ran, but it wouldn't run after putting it back together at least a half-dozen times, so I just bypassed the switch and used a switchable power strip to turn it on and off for now. I would have been better off just spending the time taking it easy.... 219

Anyway, here's what I've done so far. Yeah, I know, just a bunch of strips of wood right now:

   

   


Re: EZ's 2013 duff challenge part 2 - ngauger - 03-18-2013

Icon_lol Yeah - it sounds like you were having "fun" with all those setbacks.. Sad Sad

Looks good so far!!! Smile Smile


Re: EZ's 2013 duff challenge part 2 - ezdays - 03-18-2013

Yup, mucho fun. At least I knew where my meter was when I needed it.... 357 357 357 357

Just one more shot. Let's face it, at this point there's nothing spectacular going on, but I do need to show that there is progress. This is the second glue-up of the shelves. There are 15 shelves total as well as the bottom rail. Each shelf has two rows at 34.25" giving me a total of just under 1100" to display my rolling stock. That works out to around 200 to 300 cars and engines. 1100 inches sounded line a lot until I just did the math. It may not be enough, but hey, there's always room on my layout I think... Icon_lol Icon_lol

My next step it to either stain or paint these shelves. It depends on how well they take stain, but I'm concerned because of the raw ends on the oak plywood. I'll probably end up with a flat black on the shelves only. The rest of the cabinet will be stained oak. I'll have to try it first since I have one extra shelf that I can play around with.

   


Re: EZ's 2013 duff challenge part 2 - ezdays - 03-23-2013

This is one small step for man.... well, just like the landing on the moon, it took a lot of work to get to that step. Big Grin Here is all the parts for the box ready to assemble. I've painted the shelves flat black, since they didn't take the stain too well, and stained the insides of the sides and top pieces.

Yeah, it still doesn't look like anything yet, but today, they get put together and it'll start looking like a display cabinet.... I hope... Icon_lol

   


Re: EZ's 2013 duff challenge part 2 - ezdays - 03-23-2013

And then... One giant step for mankind. I've got the main box assembled. Frame is together, back and shelves are in place. I still have some trim pieces and the doors to put on, plus staining the outside, but now it's starting to look like a project.